Immeuble commercial d’exception – 250 m² | La Bonne Pierre - Celle qui vous rapporte

Retour aux annonces

Immeuble commercial d’exception – 250 m²

Prix de vente :

699.000

Rentabilité du bien :

5,15

Ref-id : 237074

HAI : inclus

Loyer mensuel : 3.000€

Type de vendeur : Professionnel

Type de bien : Murs Commerciaux /Locaux

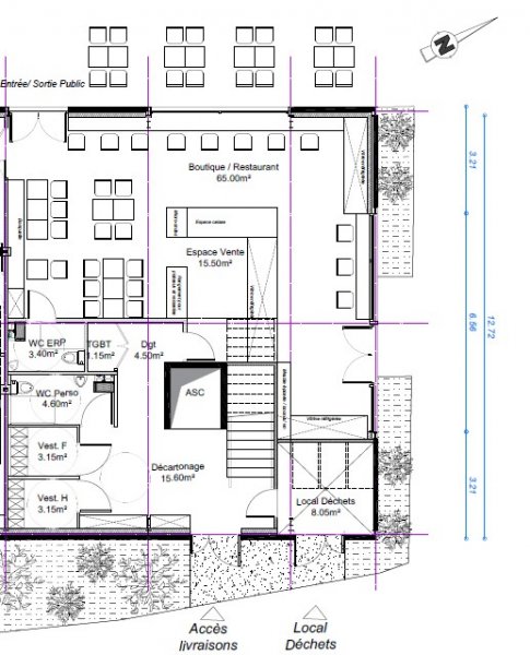
Descriptif du bien Immeuble commercial d’exception – 250 m² – Bassins à Flot – Emplacement stratégique

Au cœur du quartier en plein essor des Bassins à Flot, à proximité immédiate de la Cité du Vin, cet immeuble indépendant de 250 m² bénéficie d’un emplacement stratégique au sein d’un environnement dynamique, à forte fréquentation.

Développé sur deux niveaux, ce bâtiment au style industriel marqué (briques apparentes et structure métallique treillis) offre un cachet architectural rare, parfaitement adapté à un concept de restauration ou à un projet tertiaire à forte identité.

Configuration actuelle – Usage restauration

Rez-de-chaussée : vaste espace commercial avec large façade vitrée offrant visibilité et luminosité

R+1 : laboratoire et chambres froides, accessibles par ascenseur et escalier

Surface totale exploitable : environ 250 m²

Le bien est classé ERP 5 – types M et N, conforme aux normes en vigueur pour l’accueil du public.

Un actif à fort potentiel

✔ Double affectation commerciale et tertiaire
✔ Quartier attractif et en développement continu
✔ Architecture différenciante idéale pour un concept premium
✔ Opportunité rare sur le secteur

Ce bien s’adresse à un restaurateur ambitieux, une enseigne nationale ou un investisseur recherchant un actif à forte valorisation dans un secteur porteur.

Dossier complet, informations financières et modalités sur demande.
  • Nbr de pièces : T2
  • Surface du bien : 250 m²
  • Étage : R+1
  • Code postal : 33300
  • Type de bail : Bail professionnel
  • Classement énergétique DPE : E
  • Classement énergétique GES : B
  • Type de chauffage : Individuel
  • Chauffage : Electrique
  • Taxe foncière : 2366 €
ANNONCES À LA UNE :
Immobilier Professionnel à vendre Pont-Sainte-Marie

Pont-Sainte-Marie

Prix de vente :

1.425.700

Rentabilité brute :

7,76

Local d’activité 400 m² vendu loué

FRONTIGNAN

Prix de vente :

369.000

Rentabilité brute :

7,28

Immeuble de rapport - 4 bureaux + cave

Bordeaux

Prix de vente :

450.000

Rentabilité brute :

8,00

Besoin d'aide ?